直埋補償器的(膨脹節)直埋補償器內部結構是什么?
下面先介紹一下直埋補償器具有以下特點:
1、產品自帶密封的保護罩.可直埋于地下.不必配置小井。
2、產品自帶限位機構.設計管線時不必設置用于分割補償的次固定支架。
3、產品自帶內壓推力承力構件.管線分段試壓時不必配置固定支架。
4、產品具有雙向導流功能.安裝無方向要求。
5.便于施工.安裝。節省投資。
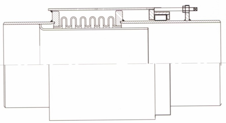
直埋補償器的結構簡圖

直埋補償器的產品代號示例

直埋補償器在選型時,需要充分考慮工作介質、溫度、壓力和位移量等因素,以確保補償器的可靠性和使用壽命。